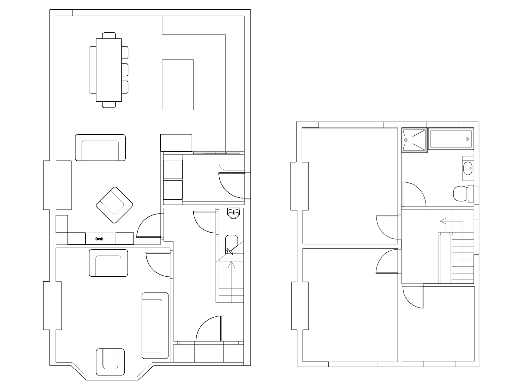
As part of the renovation of this property, our proposals included a loft conversion to and another bedroom and a ground floor extension to open up the back of the house, increase the size of the kitchen, create a family living area and introduce a utility room.

External Elevations – Existing

Ground Floor & First Floor Plans – Existing

Ground Floor & First Floor Plans – Proposed

Sections for Loft Conversion & Extension – Proposed

External Elevations for Loft Conversion & Extension – Proposed
Have a project in mind?
